Terreno para Venda, Carapicuíba / SP
Ref: 393TEVE, bairro Recanto Impla, área construída 117,15 m², terreno 1.000,00 m²Compartilhar:
R$ 690.000
Condomínio
R$ 750,00
IPTU
2.534,00
Descrição do Imóvel
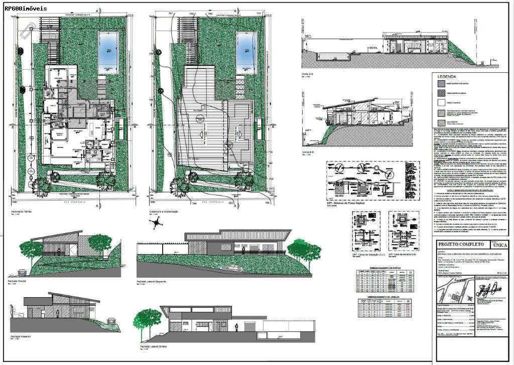
Descubra o terreno que combina segurança, praticidade e potencial de valorização em um só espaço. Com projeto já aprovado e alvará para reforma e construção emitido em 12/01/2022, este lote oferece a liberdade de construir o seu lar dos sonhos ou investir em um empreendimento de alto padrão, tudo com a tranquilidade de um condomínio que garante portaria 24h, segurança e ronda armada.
O lote possui 117,15 m² de edícula pronta, ideal para iniciar a obra ou gerar renda imediata, enquanto o terreno maior apresenta um aclive na frente que cria um elegante platô, proporcionando vistas privilegiadas e possibilidades de design arquitetônico diferenciadas. O condomínio, com taxa mensal de R$ 750,00, oferece infraestrutura completa e manutenção impecável, e o IPTU anual de R$ 2.534,00 reflete a valorização da região.
Localizado em um bairro de alto padrão, o imóvel está rodeado por comércios de qualidade, escolas conceituadas e fácil acesso a vias principais e transporte público, garantindo conveniência no dia a dia. A proximidade com áreas verdes e opções de lazer complementa o estilo de vida sofisticado que você busca.
Financiamento bancário é aceito, facilitando a realização do seu projeto. Lembre se: visitas de corretores são realizadas apenas mediante agendamento, e placas de imobiliárias externas não são permitidas, preservando a exclusividade e a ordem do condomínio.
Não perca a oportunidade de adquirir um terreno com todas as garantias e infraestrutura necessárias para transformar seu projeto em realidade. Entre em contato agora mesmo e agende sua visita o futuro da sua nova vida começa aqui.
Central de Negócios
Para ter mais informações sobre este imóvel ligue:
(11) 4556-7163 (11) 97114-0600
Avenida Rui Barbosa, 2773
Vila Santa Terezinha - Carapicuíba
(11) 94199-4600 (11) 97114-0600
rp600imoveis@gmail.com






























